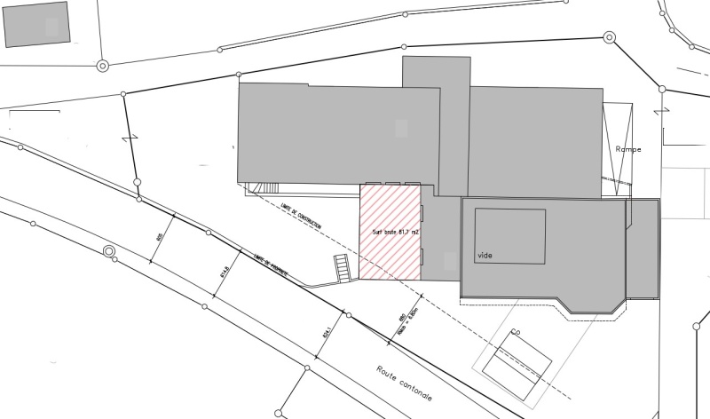
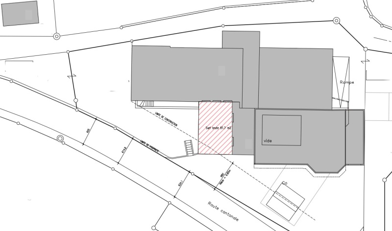
Die Direktion für Raumentwicklung, Infrastruktur, Mobilität und Umwelt (RIMU) kann Abweichungen zu den Baugrenzen einer Kantonsstrasse gewähren, soweit sie durch besondere Umstände gerechtfertigt sind und keine überwiegenden öffentlichen oder privaten Interessen verletzen (Art. 145 Mobilitätsgesetz MobG ). Der Inhalt von Artikel 145 MobG, der das Verfahren für Ausnahmebewilligungen regelt, lautet wie folgt:
Das Gesuch um Abweichung muss dem Baubewilligungsgesuch beigelegt und im Amtsblatt veröffentlicht werden. Dazu muss das Gesuch um Abweichung bei der öffentlichen Auflage in die Beschreibung der Arbeit sowie in den entsprechenden Absatz des Veröffentlichungsgesuchs aufgenommen werden.
Weiter muss die Begründung für das Gesuch um Abweichung dem Baubewilligungsgesuch beigefügt werden.
Artikel 65 des Mobilitätsreglements legt fest, dass das Tiefbauamt (TBA) dafür zuständig ist, im Namen der RIMU Entscheidungen in Anwendung von Art. 145 MobG zu treffen.