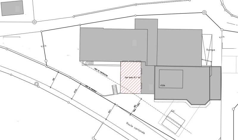
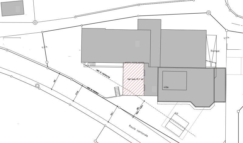
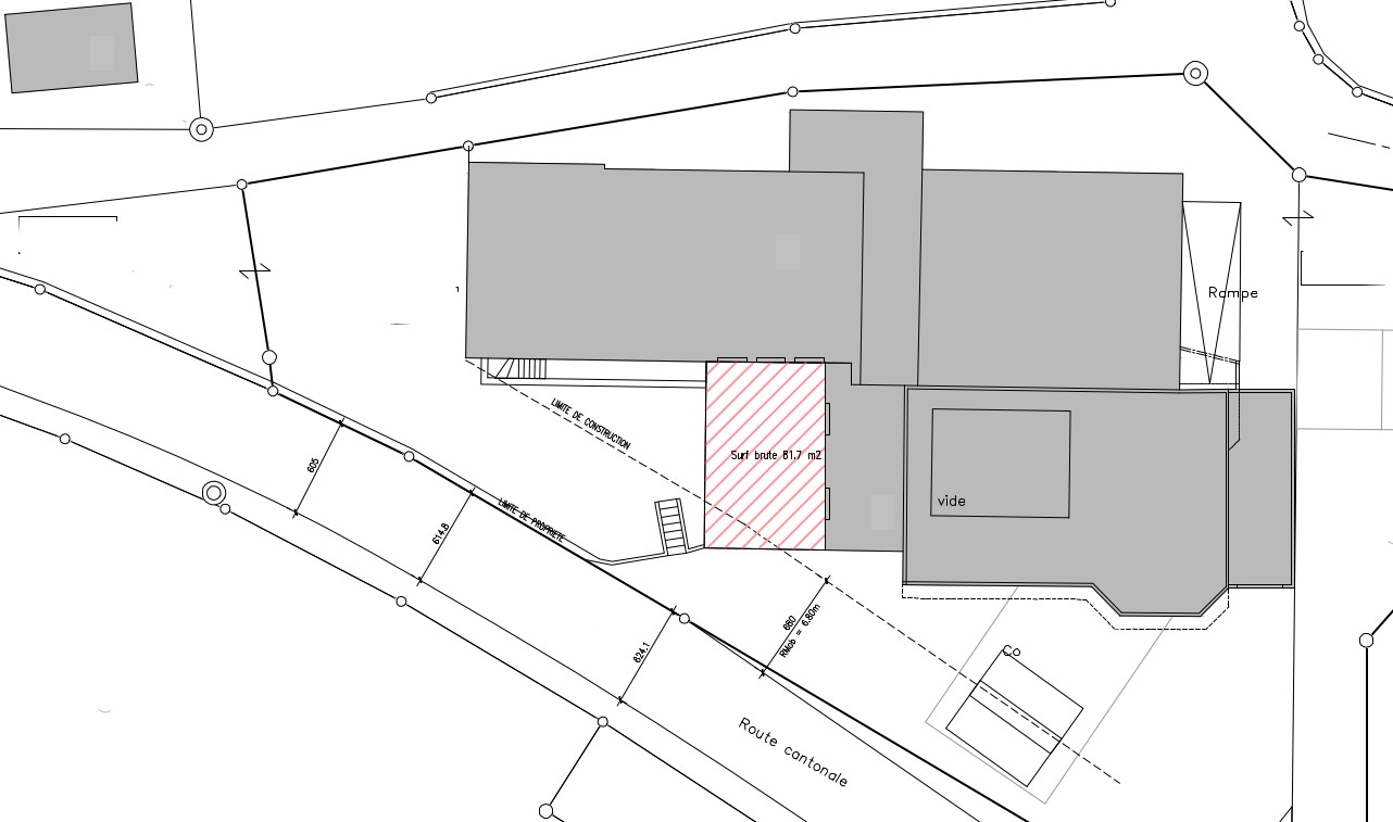
Une dérogation aux limites de construction peut être accordée par la Direction du développement territorial, des infrastructures, de la mobilité et de l’environnement (DIME), à condition qu'elle soit justifiée par des circonstances particulières et qu'elle ne porte pas atteinte à des intérêts prépondérants publics ou privés (art. 145 loi sur la mobilité LMob ). La teneur de l'article 145 LMob , qui règle la procédure de demande de dérogation, est la suivante:
La demande de dérogation doit être jointe à la demande de permis et publiée dans la feuille officielle. Cela consiste à insérer la demande de dérogation dans le texte de la description de l’ouvrage lors de la mise à l’enquête ainsi que dans le paragraphe requis (mentions) de la demande de publication.
La motivation de demande de dérogation doit être jointe au dossier de demande de permis de construire.
L'article 65 du Règlement sur la mobilité précise que le Service des Ponts et Chaussées (SPC) est compétent pour prendre, au nom de la DIME, les décisions en application de l'art. 145 LMob.